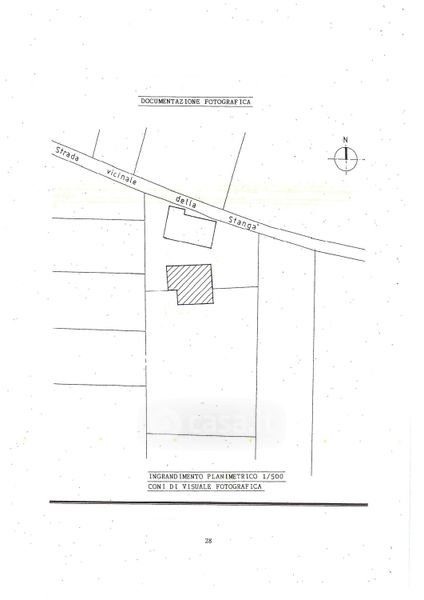
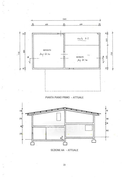
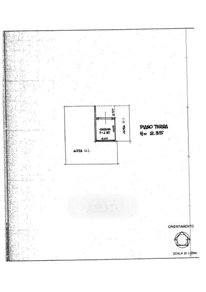
Rustico/Casale in vendita Via Cantarana , Colceresa
Salva
Casa.it
1/72
  • Street View
  • Map