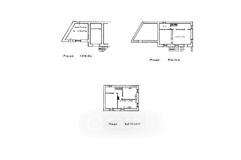
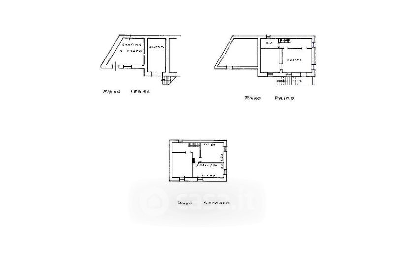
Rustico/Casale in vendita Località Pizzon 1, Costermano sul Garda
Salva
Casa.it
1/23
  • Street View
  • Map