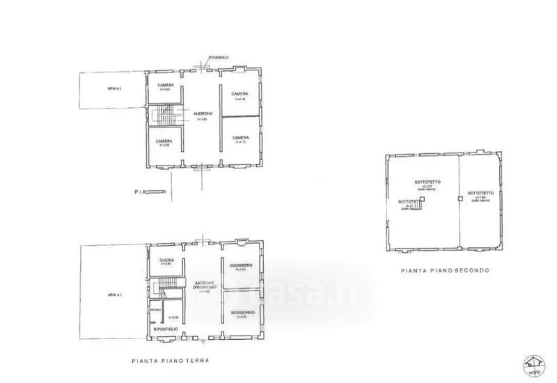
Rustico/Casale in vendita Via Cristo , Piove di Sacco
Salva
Casa.it
1/7
  • Street View
  • Map