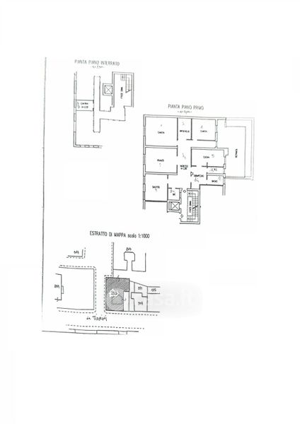
Stanza in affitto Via Alessandro Tiarini , Bologna
Salva
Casa.it
1/29
  • Street View
  • Map