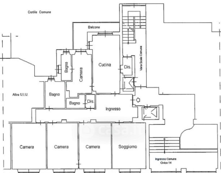
Stanza in affitto Via Amerigo Vespucci 14, Torino
Salva
Contatta l'inserzionista
Casa.it