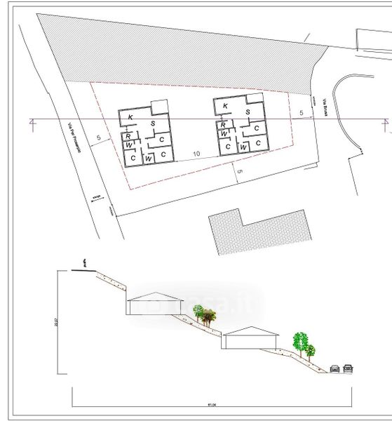
Terreno edificabile in vendita Via Brusa , Canzo
Salva
Casa.it
1/13
  • Street View
  • Map