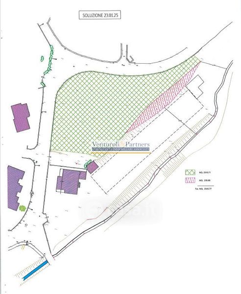
Terreno edificabile in vendita Via Papa Giovanni XXIII' , Gavardo
Salva
Casa.it
1/16
  • Street View
  • Map