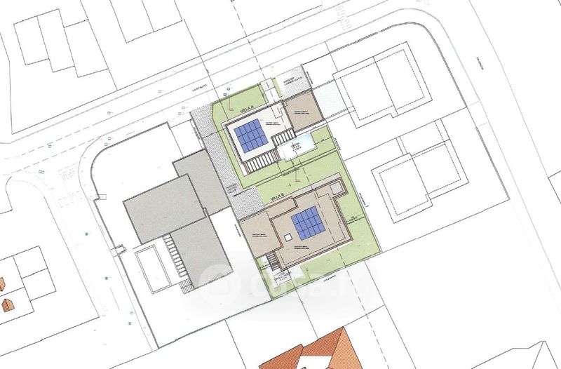
Terreno edificabile in vendita Via Oriana Fallaci , Mercallo
Salva
Casa.it
1/10
  • Street View
  • Map