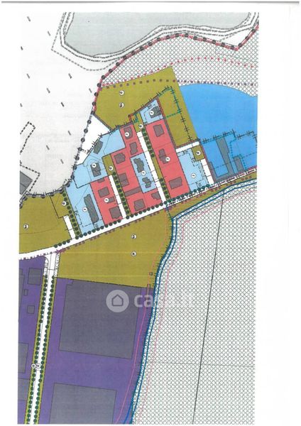
Terreno edificabile in vendita Via Santa Cristina 74, Borgaro Torinese
Salva
Casa.it
1/24
  • Street View
  • Map