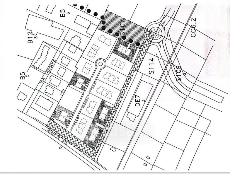
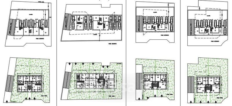
Terreno edificabile in vendita Via Vittorio Alfieri , Rivalta di Torino
Salva
Casa.it
1/20
  • Street View
  • Map