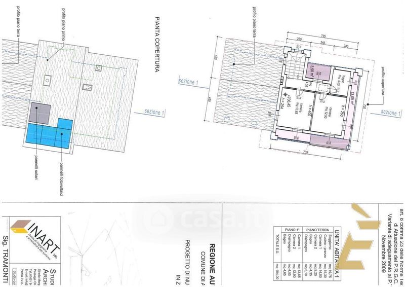
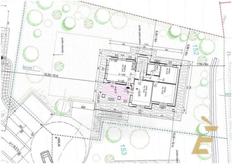
Terreno edificabile in vendita Frazione Truchod 174, Aosta
Salva
Casa.it
1/13
  • Street View
  • Map