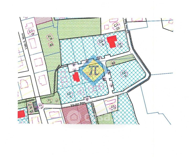
Terreno edificabile in vendita Via Dee Buse 7, Annone Veneto
Salva
Casa.it
1/10
  • Street View
  • Map