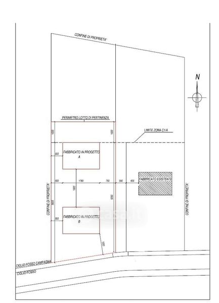
Terreno edificabile in vendita Via Albere , Santa Giustina in Colle
Salva
Casa.it
1/21
  • Street View
  • Map