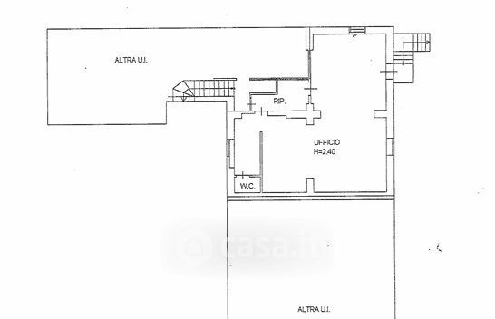
Ufficio in vendita Via San Mamolo 31, Bologna
Salva
Casa.it
1/16
  • Street View
  • Map