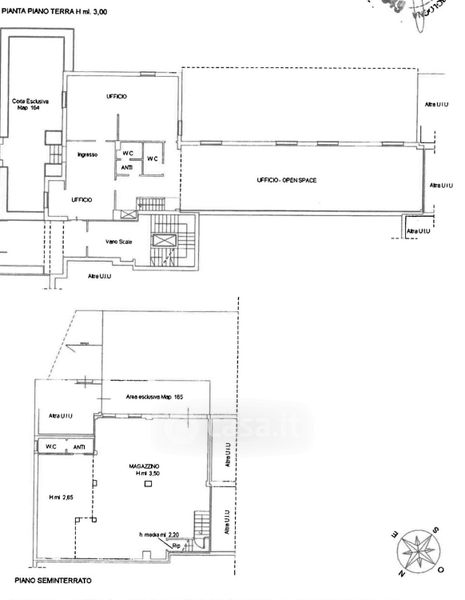
Ufficio in vendita Via Leopoldo Fregoli , Bologna
Salva
Casa.it
1/16
  • Street View
  • Map