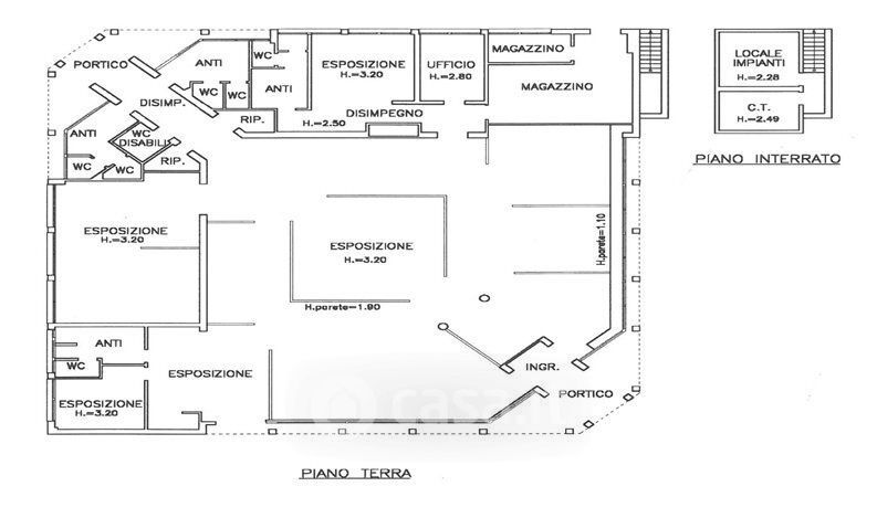
Ufficio in affitto Via Clodoveo Bonazzi 30, Castel Maggiore
Salva
Casa.it
1/15
  • Street View
  • Map