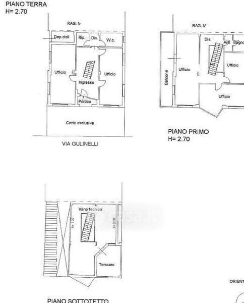
Ufficio in vendita Via Luigi Gulinelli , Ferrara
Salva
Casa.it
1/12
  • Street View
  • Map