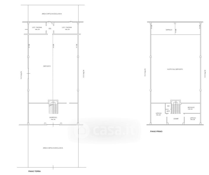
Ufficio in affitto Via Marino Mazzacurati , Reggio Emilia
Salva
Casa.it
1/11
  • Street View
  • Map