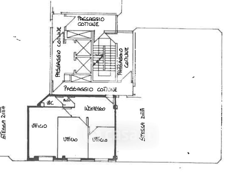
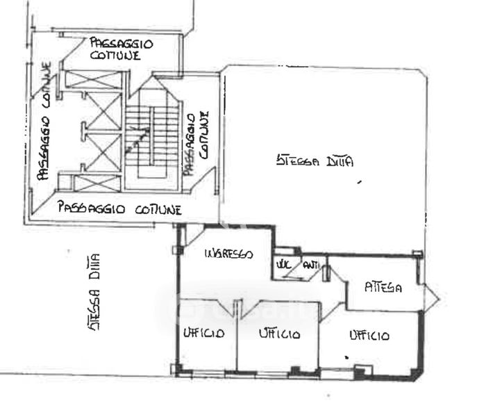
Ufficio in affitto Via Rosario Livatino 9, Reggio Emilia
Salva
Casa.it
1/24
  • Street View
  • Map