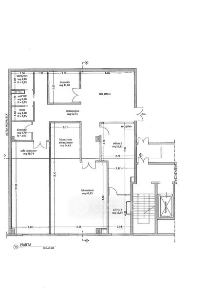
Ufficio in affitto Via delle Genziane 13 d, Guidonia Montecelio
Salva
Casa.it
1/15
  • Street View
  • Map