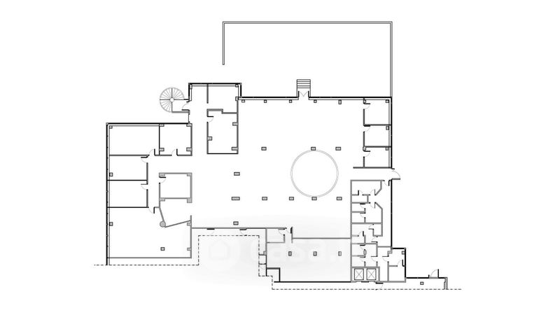
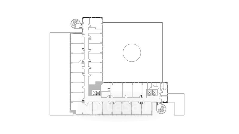
Ufficio in affitto Via Cesare Giulio Viola 43, Roma
Salva
Casa.it
1/11
  • Street View
  • Map