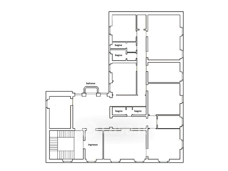
Ufficio in affitto Via Abruzzi 1 a, Roma
Salva
Casa.it
1/23
  • Street View
  • Map