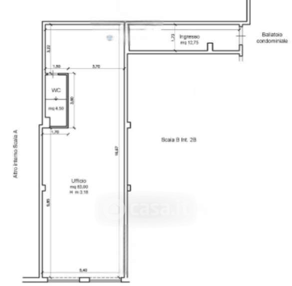
Ufficio in vendita Via Tuscolana , Roma
Salva
Casa.it
1/17
  • Street View
  • Map