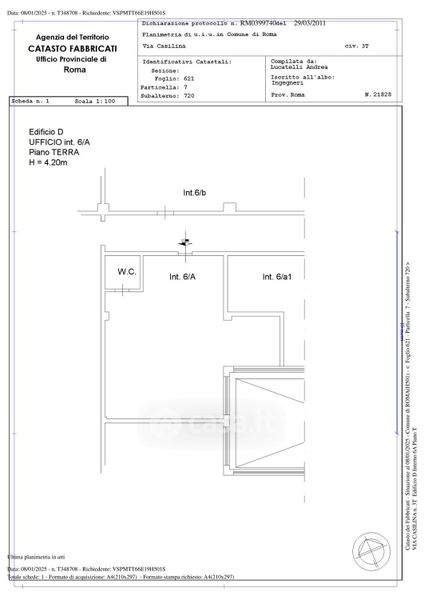
Ufficio in vendita Via Casilina 3 /T, Roma
Salva
Casa.it
1/15
  • Street View
  • Map