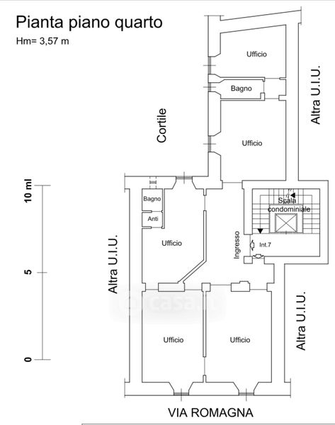
Ufficio in affitto Via Romagna 26, Roma
Salva
Casa.it
1/22
  • Street View
  • Map