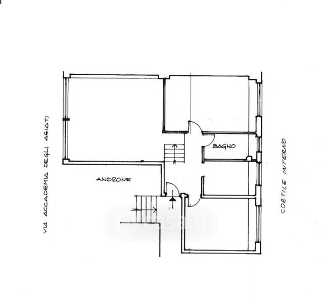
Ufficio in vendita Via Accademia degli Agiati 51, Roma
Salva
Casa.it
1/32
  • Street View
  • Map