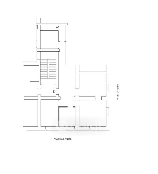
Ufficio in affitto Viale delle Milizie 34, Roma
Salva
Casa.it
1/27
  • Street View
  • Map