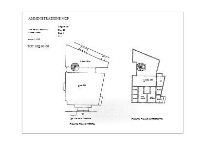
Ufficio in affitto Via della Consulta , Roma
Salva
Casa.it
1/4
  • Street View
  • Map