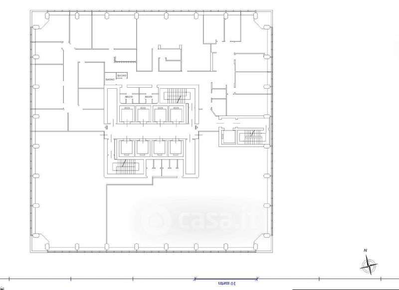
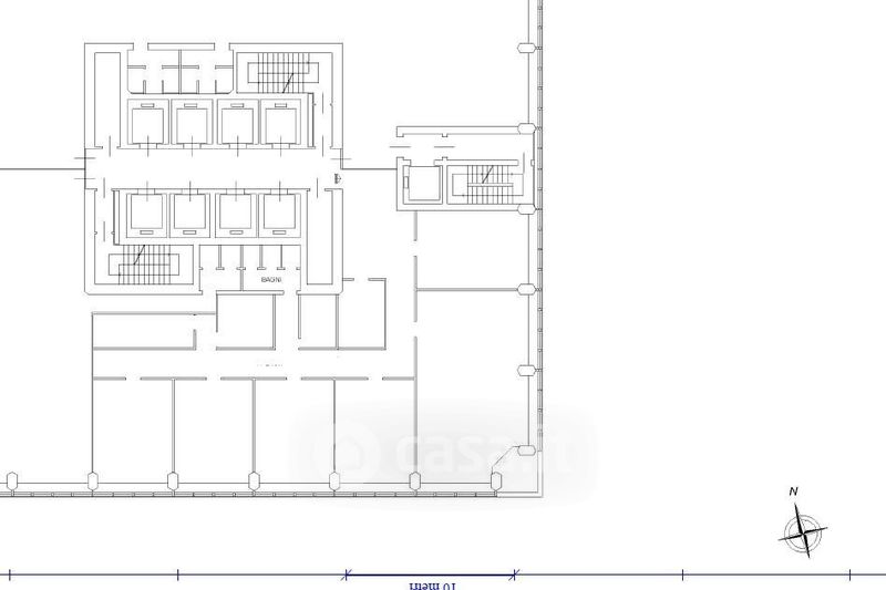
Ufficio in affitto Via de Marini , Genova
Salva
Casa.it
1/46
  • Street View
  • Map