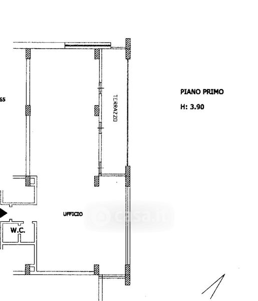
Ufficio in vendita Via Fontevivo , La Spezia
Salva
Casa.it
1/18
  • Street View
  • Map