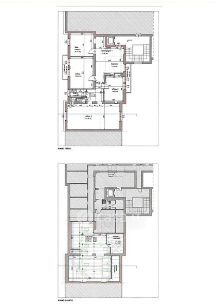
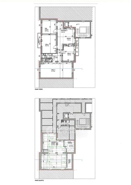
Ufficio in affitto Via Giosuè Carducci , Bergamo
Salva
Casa.it
1/16
  • Street View
  • Map