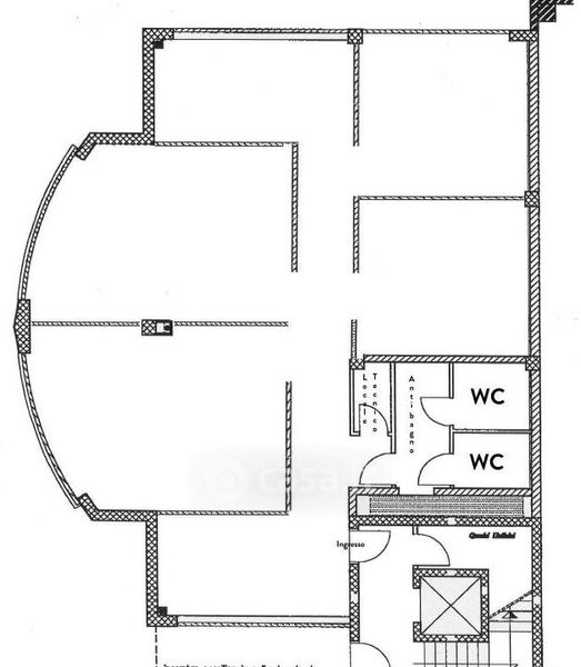
Ufficio in vendita Via Niccolò Machiavelli , Busto Arsizio
Salva
Casa.it
1/20
  • Street View
  • Map