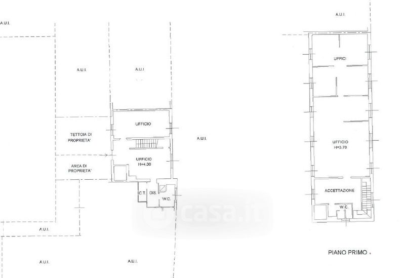
Ufficio in vendita Via Sirmione 6, Busto Arsizio
Salva
Casa.it
1/18
  • Street View
  • Map