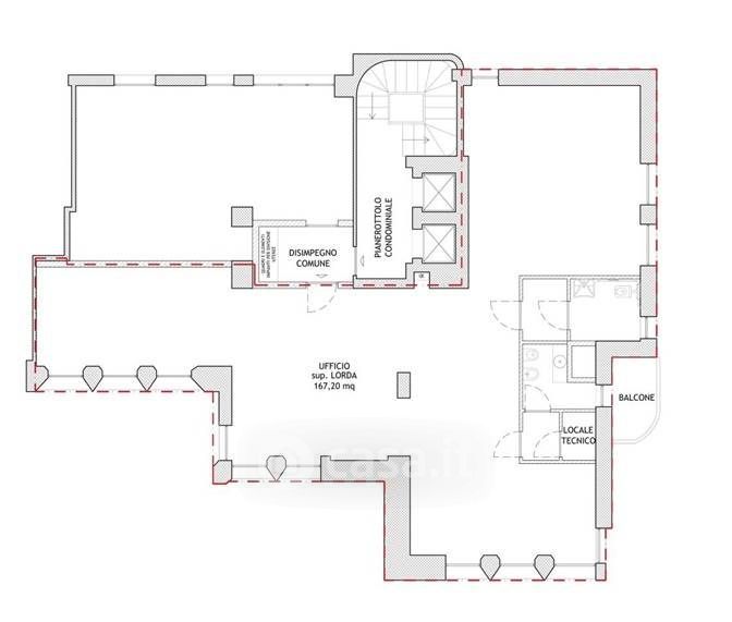
Ufficio in affitto Viale Elvezia 12, Milano
Salva
Casa.it
1/18
  • Street View
  • Map