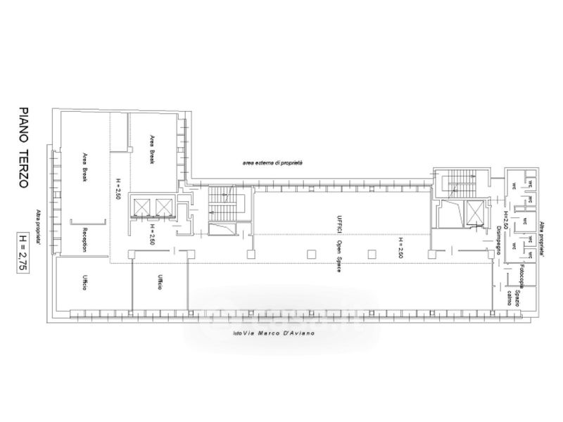
Ufficio in affitto Via Marco D'Aviano 2, Milano
Salva
Casa.it
1/22
  • Street View
  • Map