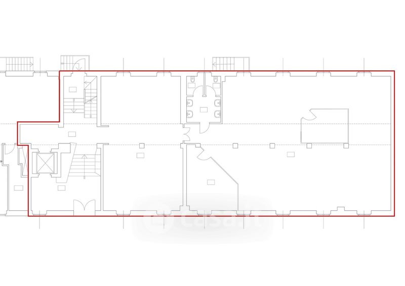
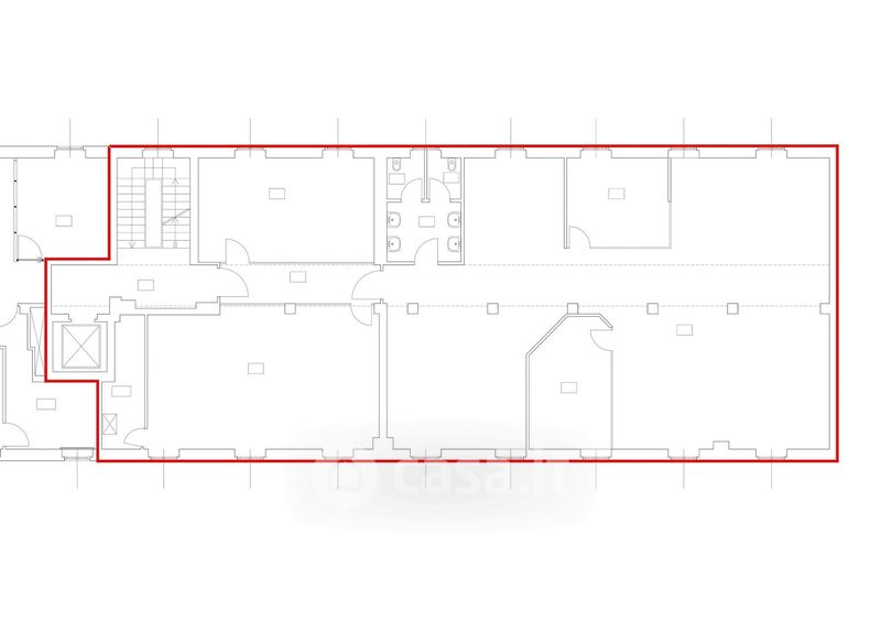
Ufficio in affitto Via Merano 16, Milano
Salva
Casa.it
1/25
  • Street View
  • Map