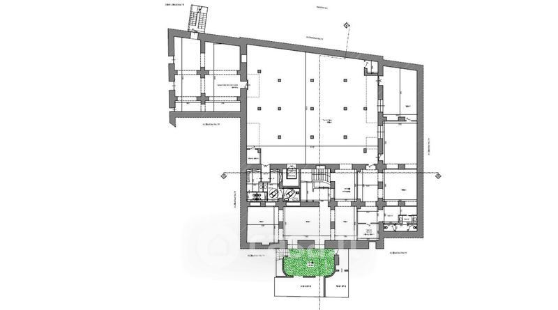
Ufficio in affitto Via Cadore 2, Milano
Salva
Casa.it
1/26
  • Street View
  • Map