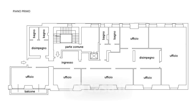
Ufficio in affitto Corso Sempione 6, Milano
Salva
Casa.it
1/19
  • Street View
  • Map