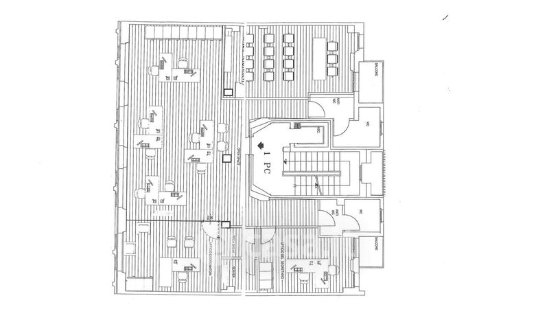
Ufficio in affitto Via Giovanni Battista Pirelli 11, Milano
Salva
Casa.it
1/24
  • Street View
  • Map