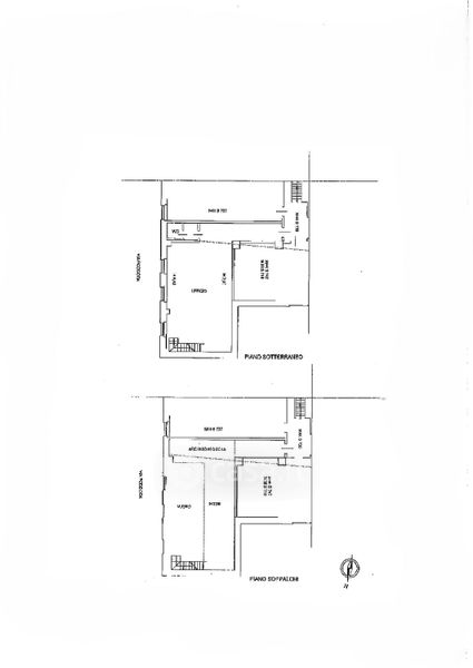
Ufficio in vendita Via Podgora 11, Milano
Salva
Casa.it
1/42
  • Street View
  • Map