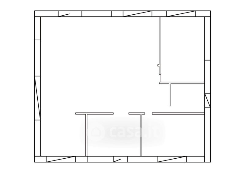
Ufficio in affitto Via Pietro Verri , Milano
Salva
Casa.it
1/21
  • Street View
  • Map