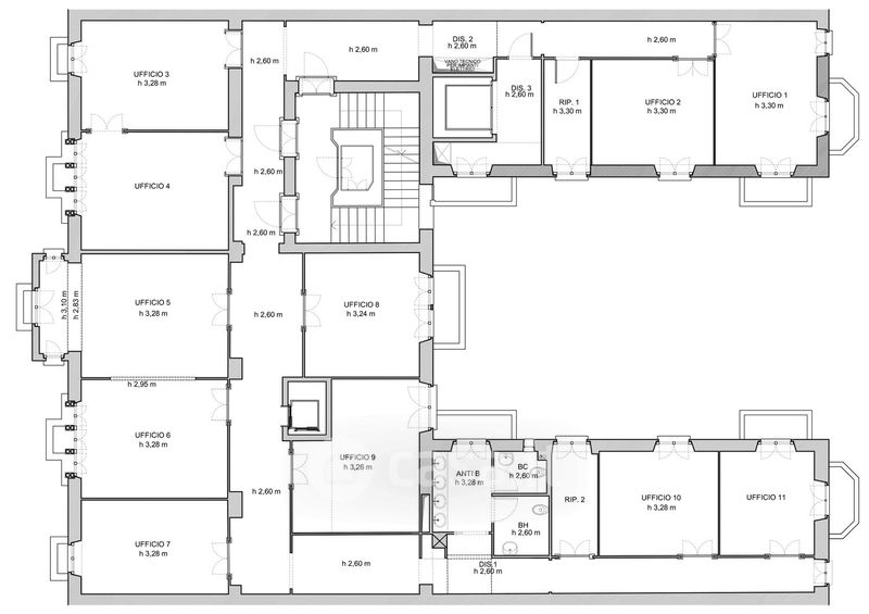
Ufficio in affitto Via San Gregorio 29, Milano
Salva
Casa.it
1/30
  • Street View
  • Map