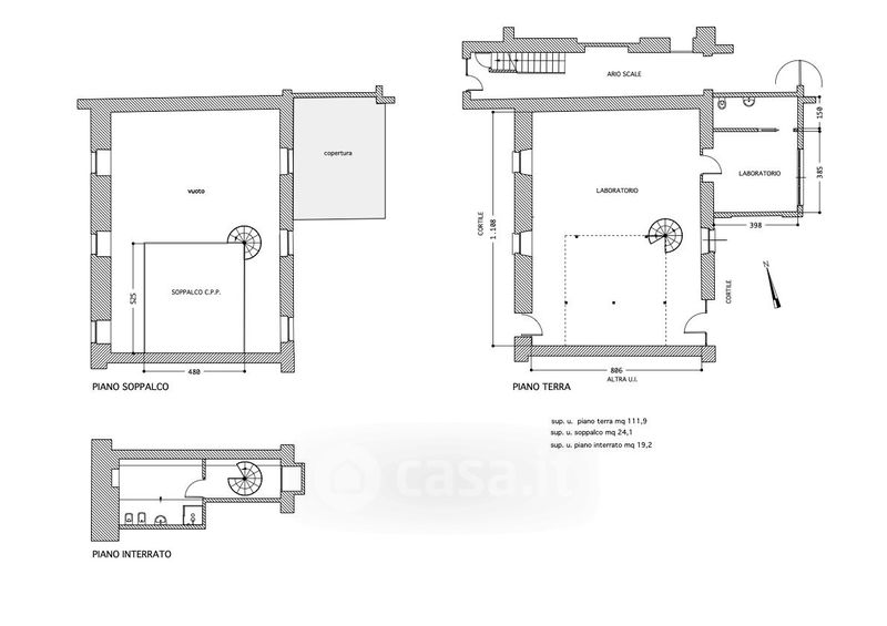
Ufficio in affitto Alzaia Naviglio Pavese 52, Milano
Salva
Casa.it
1/24
  • Street View
  • Map