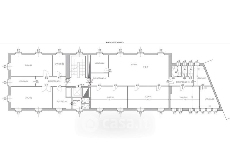
Ufficio in affitto Piazzale Carlo Maciachini 9, Milano
Salva
Casa.it
1/13
  • Street View
  • Map