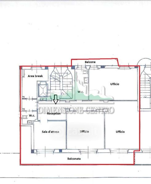
Ufficio in affitto Via Ruggero Boscovich 61, Milano
Salva
Casa.it
1/17
  • Street View
  • Map