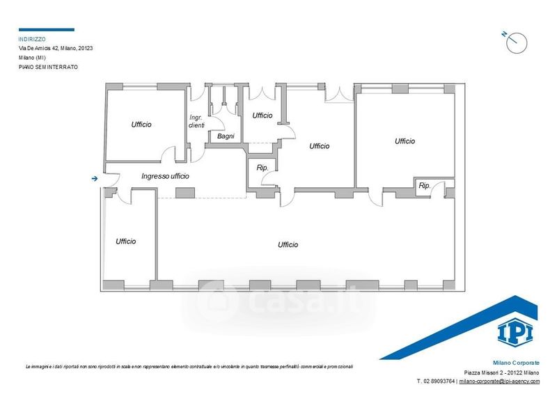
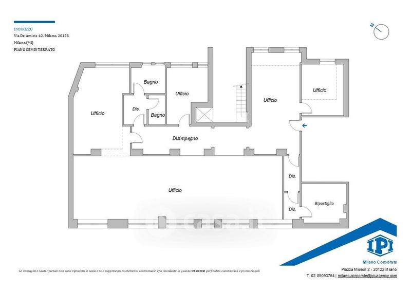
Ufficio in vendita Via Edmondo de Amicis 42, Milano
Salva
Casa.it
1/44
  • Street View
  • Map