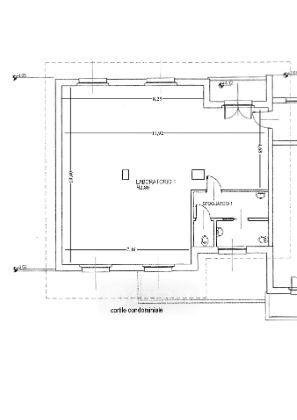
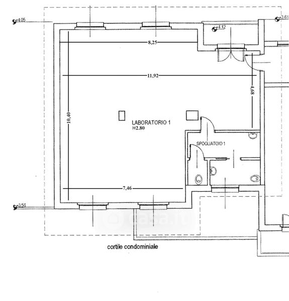
Ufficio in affitto Via Derna 26, Milano
Salva
Casa.it
1/28
  • Street View
  • Map