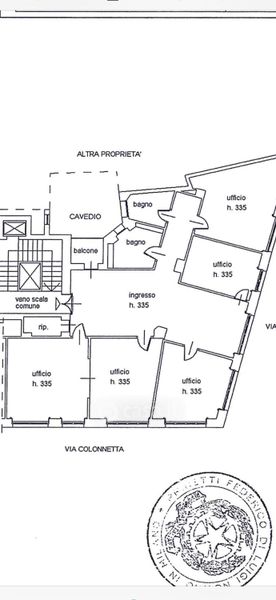
Ufficio in affitto Via Colonnetta 3, Milano
Salva
Casa.it
1/41
  • Street View
  • Map