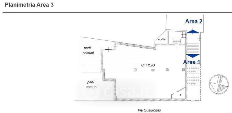
Ufficio in vendita Via Quadronno 34, Milano
Salva
Casa.it
1/30
  • Street View
  • Map