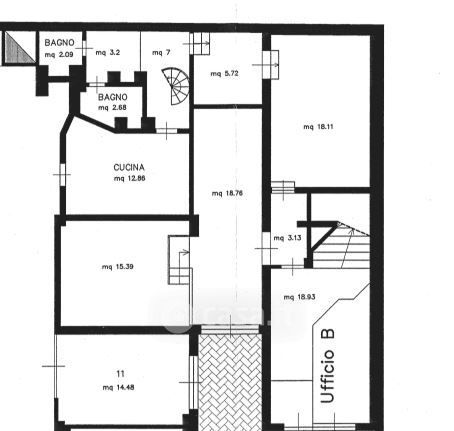
Ufficio in affitto Via Giuseppe Mercalli 6, Milano
Salva
Casa.it
1/33
  • Street View
  • Map